4713 Manning | Colleyville
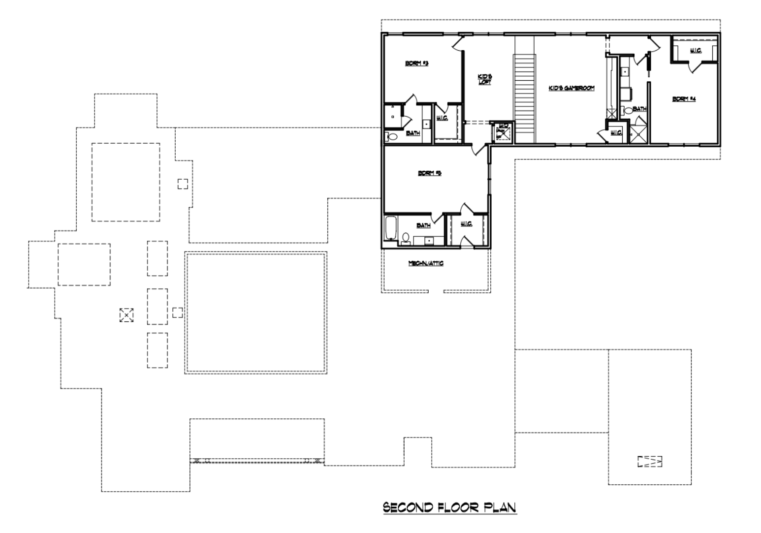
COMING SOON!! 7000 sqf modern home. 5 Bedroom 5 and a half bath, with 6 car garage seated on .87 acres in a prime location of Colleyville.
COMING SOON!! 7000 sqf modern home. 5 Bedroom 5 and a half bath, with 6 car garage seated on .87 acres in a prime location of Colleyville.